Kenmore 79075903993 Gas Range Timer - Stove Clocks and Appliance Timers 79075903993 Gas Range Burner Parts diagram
Con Gas Oven Wiring Diagram - Nov 01, 2011 · Need wiring diagram for magic chef stove/oven. Posted by Hank Williams on Jun 18, 2009. Magic Chef freestanding gas oven/stove. I have a Magic Chef gas range model CBR3765AGU and I need a wiring diagram in order to figure out why the oven and the electrical panel don't work. Where can I get a wiring diagram?. lincoln gas oven 1634 model wiring diagram Mon, 05 Nov 2018 10:26:00 GMT lincoln gas oven 1634 model pdf - lincoln gas oven 1634 model pdf lincoln 1634-3 impinger i lpg conveyor pizza ovenlincoln impinger conveyor ovens 1633-000-ea manualslincoln convection oven 1634-000-ea user. View online Wiring diagram for Electrolux E30GF74HPS - Icon - 30" Professional Series Gas Range Oven or simply click Download button to examine the Electrolux E30GF74HPS - Icon - 30" Professional Series Gas Range guidelines offline on your desktop or laptop computer..Tappan gas oven wiring diagram is among the most pictures we found on the online from reputable resources. We choose to explore this tappan gas oven wiring diagram pic in this article just because based on facts from Google engine, It really is one of the best queries keyword on google.. ge oven wiring diagram together with newer gas ge wall oven wiring diagram. ge oven wiring diagram together with electrical wiring wiring diagram sensor stand alone intended for motion en wiring diagram wiring diagrams general electric oven wiring diagram.. Frigidaire Gallery Oven Schematics Parts Furthermore Model Pleb30s9fcc Built In Electric Genuine Also Fgf379wecs Free Standing Gas Further Moreover Plgf389ccc As Well Plgf389aca Wiring Diagram Best site wiring diagram at LEIRITRONICA.COM.
Gas suppliers recommend that you use a gas detector approved by UL or CSA. For more information, contact your gas supplier. If a gas leak is detected, follow the “What to. This amazing lincoln oven wiring diagram wire data schema graphic has published in [date] by Maria Rodriquez. We thank you for your visit to our website. We thank you for your visit to our website. Make sure you get the information you are looking for.. Parts Lists with Exploded Views RANGES & RANGETOPS 76 36” Rangetop Front Panel Parts List Ref # Part # Description 1 787405 Panel, Front SB366 (See S/N.
beyond. 24" (61.0 cm) base The wiring diagram is located on the underside of the storage drawer. To find the Whirlpool part you need, try searching with your oven model number.. Nov 29, 2014 · You cant find the manual for the stove range or oven. I'm going to show you weher these are most commonly hidden or where you can most often find them. That information is pretty important to have. 24”, 30”, 36”, 48” and 60” Range Models 36” and 48” Cooktop Models Your exact model may not be pictured..
Look first to make sure that you are getting power to the oven if the heating element on the electric oven won't get hot at all. Also look for a tripped breaker, bad electrical outlet or burnt out cord.. Neff Oven Element Wiring Diagram neff oven wiring diagram which wire goes to which terminal of the element 2 wire one red one blue It does not really matter which wire goes where..
Audiosource 127 Speaker Systems Owners Manual
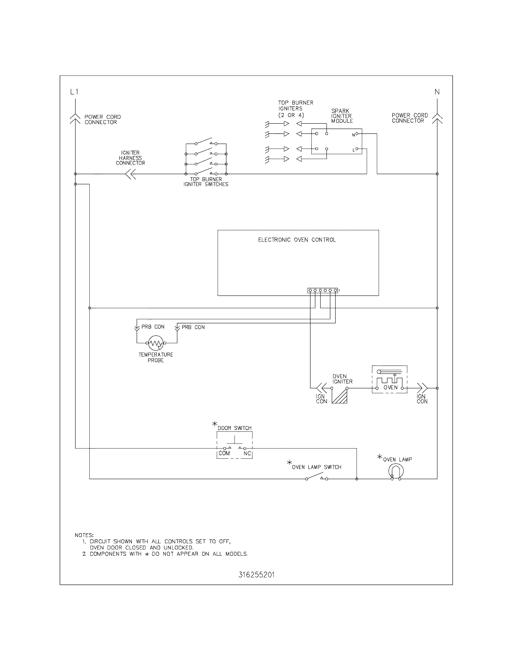
Kenmore model 79071513402 free standing, gas genuine parts
Kenmore model 79071513402 free standing, gas genuine parts
Autometer Tach Wiring Diagram Wires
Portable Air Conditioner Wiring Diagram - Circuit Diagram Schematic Portable Air Conditioner Wiring Diagram
Portable Air Conditioner Wiring Diagram - Circuit Diagram Schematic Portable Air Conditioner Wiring Diagram
Automotive Wiring Diagrams Symbols Explained
Con Gas Oven Wiring Diagram - Books Of Wiring Diagram • kenmore 79075903993 gas range timer stove clocks and appliance timers rh appliancetimers com
Con Gas Oven Wiring Diagram - Books Of Wiring Diagram • kenmore 79075903993 gas range timer stove clocks and appliance timers rh appliancetimers com
Automobile A C Compressor Wiring Diagram
Ge Gas Oven Wiring Diagram - Just Another Wiring Data Wire Diagram Ge Wall Oven Wiring Diagram Schemes Electric Oven Wiring Diagram Ge Gas Oven Wiring Diagram
Ge Gas Oven Wiring Diagram - Just Another Wiring Data Wire Diagram Ge Wall Oven Wiring Diagram Schemes Electric Oven Wiring Diagram Ge Gas Oven Wiring Diagram
Securely Verified